ГлавнаяГотовый арендный бизнес — Михеева ул., 2

Михеева ул., 2,
45.00 м2

8 000 000 руб.

177777 руб./м2

Следить за ценой


Площадь: 45.00 м2

Окупаемость: по запросу


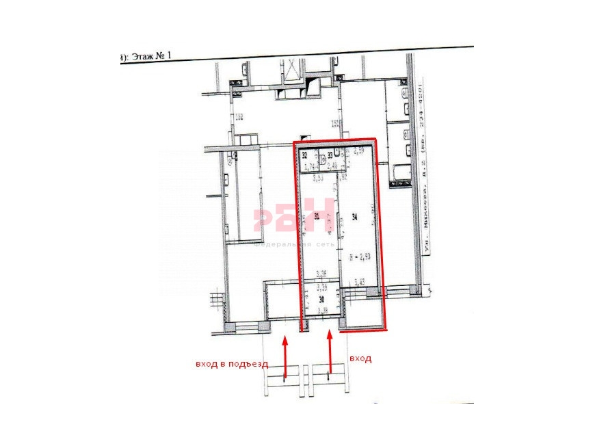
Предлагается в продажу офисное помещение с арендатором, площадью 45 м.
Без комиссии для покупателей.

- Объект расположен на первом этаже 21 этажного жилого дома в Академическом районе;
- Отдельный вход со ДВОРА дома;
- Круглосуточная охрана по периметру двора;
- Площадь 45 м.кв;
- Высота потолков 2,8 м;
- Электрическая мощность 8 кВт;

Помещение сдано в долгосрочную аренду.
Срок окупаемости 11 лет
Стоимость продажи 8 000 000 рублей.

------------------------------------------------------
Регион Бизнес Недвижимость.
Коммерческая недвижимость.
Без комиссии для покупателей
Арт. 118612913

Специалист

Мартюшов Сергей

+7-909-359-80-22

или оставьте ваш номер,
и я перезвоню в течение 5 минут

Согласен с Политикой конфинденциальности и с Политикой оператора в отношении обработки персональных данных

Отправляя заявку вы соглашаетесь на обработку персональных данных

Похожие объекты

Посмотреть другие объявления в этой категории